ANBIO

에이엔바이오

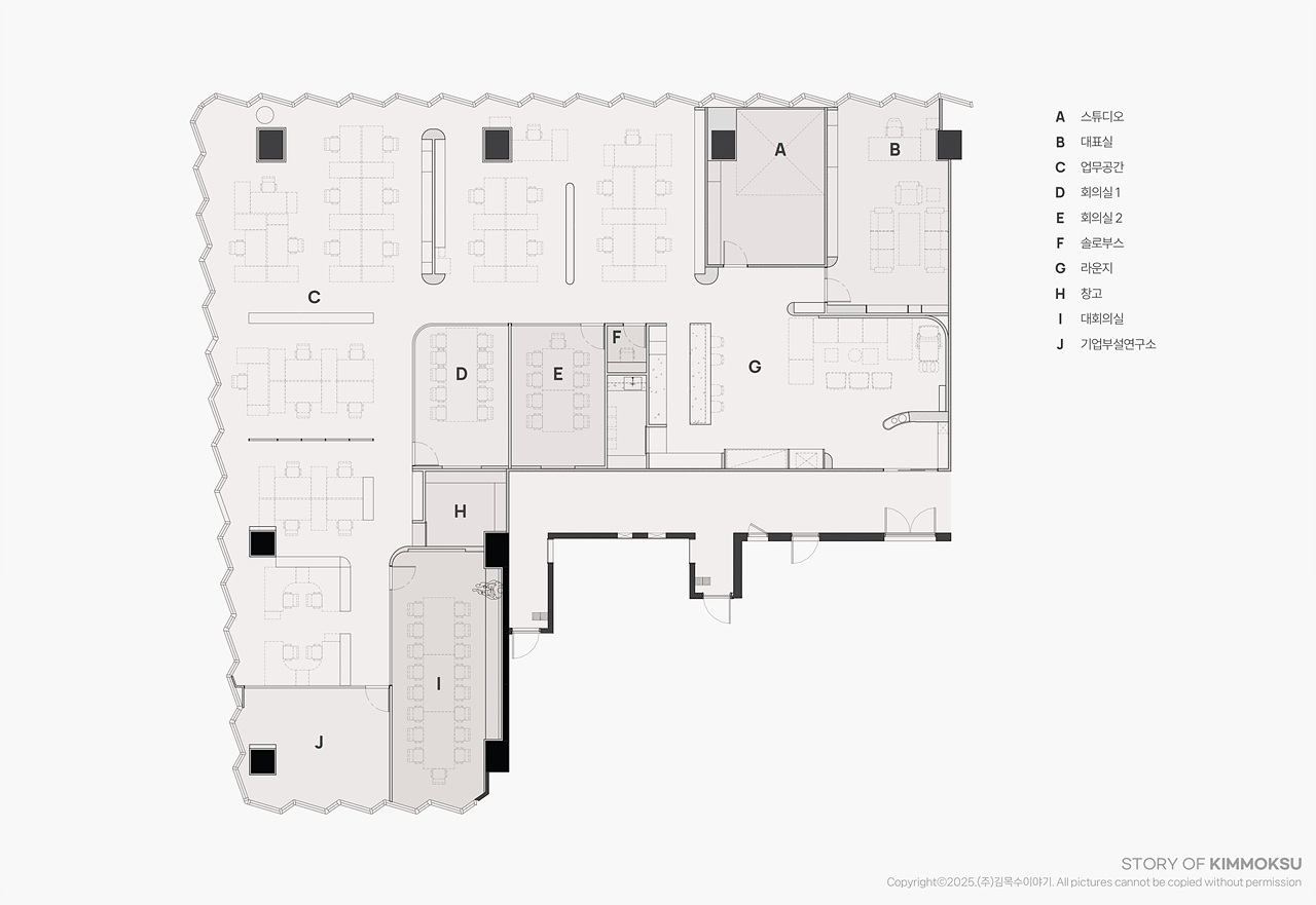
구조적 제약을 풀어낸 오피스 설계

반려동물 헬스케어 브랜드 ANBIO의 광교 사무실은 162평 규모의 공간으로 'ㄱ'자 형태로 꺾인 구조와 지그재그로 이어진 창문 라인이 특징입니다. 이러한 구조적 조건은 설계에 있어 유연한 해석이 필요했으며, 김목수이야기는 이 요소들을 인테리어에 자연스럽게 담아내고,  조화롭게 풀어내는 것에 집중했습니다. 입구 정면의 아트월은 내부가 바로 노출되지 않도록 가려주는 동시에  진입 동선을 유도합니다. 여유로운 면적의 라운지 공간에는 소파, 안마의자, 게임기 등을 배치해 직원들이 자유롭게 휴식을 취할 수 있도록 구성했습니다. 바로 옆 카페테리아의 공간 포인트는 아일랜드 테이블과 벽면을 마감한 박판 타일로, 고급스러운 마블 패턴이 전체 공간에 고급스러움을 입혀줍니다. 대표실은 독립된 룸 형태로, 업무용 책상과 소규모 회의 공간이 있는데 벽면에서 천장까지 연결되는 일체형 우드 패널이 공간 안에서 또 하나의 존(zone)을 형성합니다. 또한 대표님의 미술 소장품들 사이즈를 사전에 실측하여 설계 과정에서 전시 위치를 계획해 드렸습니다.

위    치       수원 광교신도시

면    적       535㎡ (162PY)

층    고       2700mm

구    성      라운지, 업무공간, 회의실, 대표실, 기업부설연구소, 

                 솔로부스, 창고

준    공      2025.05.22

ANBIO

에이엔바이오 사무실

구조적 제약을 풀어낸 오피스 설계

반려동물 헬스케어 브랜드 ANBIO의 광교 사무실은 162평 규모의 공간으로 'ㄱ'자 형태로 꺾인 구조와 지그재그로 이어진 창문 라인이 특징입니다. 이러한 구조적 조건은 설계에 있어 유연한 해석이 필요했으며, 김목수이야기는 이 요소들을 인테리어에 자연스럽게 담아내고,  조화롭게 풀어내는 것에 집중했습니다. 입구 정면의 아트월은 내부가 바로 노출되지 않도록 가려주는 동시에  진입 동선을 유도합니다. 여유로운 면적의 라운지 공간에는 소파, 안마의자, 게임기 등을 배치해 직원들이 자유롭게 휴식을 취할 수 있도록 구성했습니다. 바로 옆 카페테리아의 공간 포인트는 아일랜드 테이블과 벽면을 마감한 박판 타일로, 고급스러운 마블 패턴이 전체 공간에 고급스러움을 입혀줍니다. 대표실은 독립된 룸 형태로, 업무용 책상과 소규모 회의 공간이 있는데 벽면에서 천장까지 연결되는 일체형 우드 패널이 공간 안에서 또 하나의 존(zone)을 형성합니다. 또한 대표님의 미술 소장품들 사이즈를 사전에 실측하여 설계 과정에서 전시 위치를 계획해 드렸습니다.

위    치       수원 광교신도시

면    적       535㎡ (162PY)

층    고       2700mm

구    성      라운지, 업무공간, 회의실, 대표실, 기업부설연구소, 솔로부스, 창고

준    공      2025.05.22