GLOBAL STAGE GROUP
글로벌스테이지그룹 사무실
글로벌스테이지그룹의 사무실, 감각이 감각을 만나다.
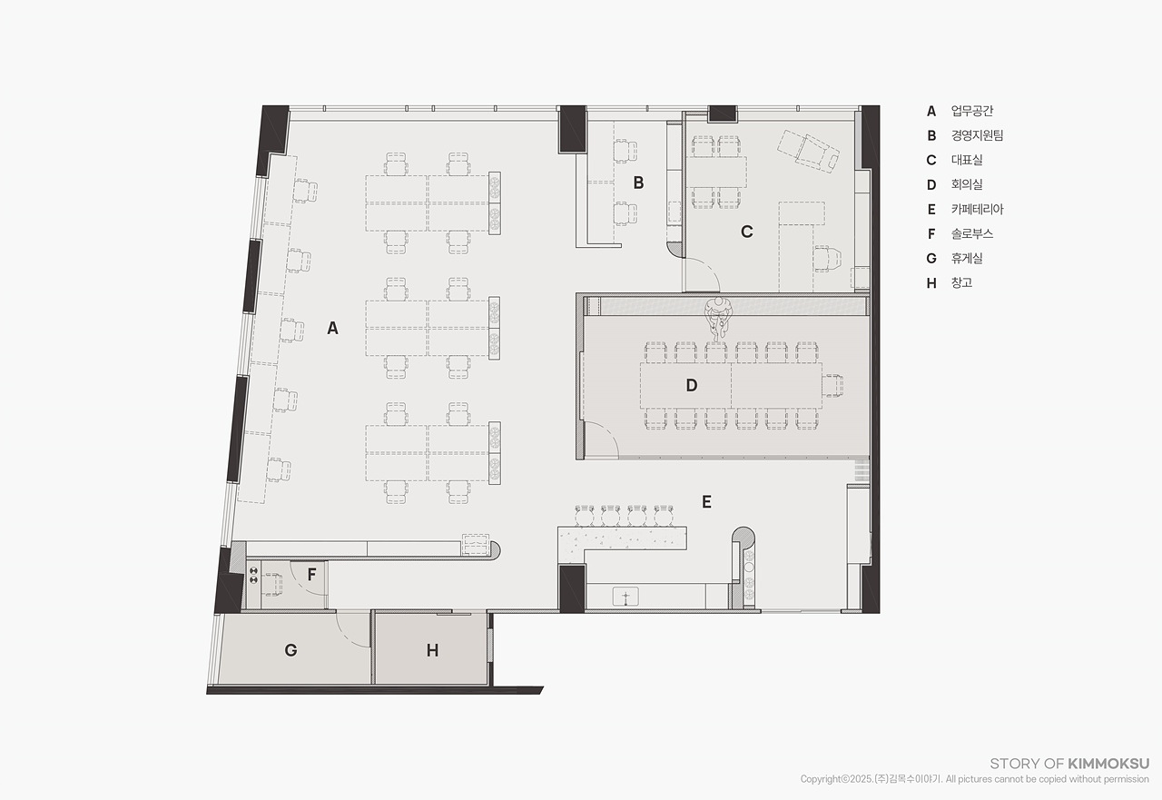
무대 디자인을 전문으로 하는 기업 <글로벌스테이지그룹>의 사무실, 컬러와 소재의 균형을 통해 감각적인 무드와 실용성, 두 가지를 동시에 담아낸 오피스를 완성했습니다. 이번 프로젝트는 파주에 위치한 70평 규모의 사무공간으로, 김목수이야기는 사무실 자체가 하나의 무대처럼 느껴지도록 감각적인 요소들을 조화롭게 더해 영감을 줄 수 있는 공간을 완성했습니다. 전체 인테리어는 블랙, 브라운, 딥그린 컬러를 중심으로 계획되었습니다. 어두운 톤이 주는 안정감과 고급스러움은 유지하되, 미색을 베이스로 사용해 전체적인 밝기와 균형을 맞췄습니다. 대회의실과 연결되는 구조의 카페테리아는 폴딩도어를 활용해 하나의 공간을 두 가지 방식으로 사용할 수 있도록 계획하였는데 휴식도 가능하고, 필요시 대형 회의나 강연 공간으로 전환이 가능해 활용도 높은 구성이 특징입니다. 대회의실 천장에는 블랙 흡음타공판을 시공하여 음향의 질을 높였고, 벽면에는 TV를 매립해 깔끔한 시각 동선을 확보했습니다. 특히 긴 벽면에는 딥그린 컬러의 삼각 격자 포인트와 함께 붙박이 의자를 제작해, 포인트가 되면서 추가 인원을 수용할 수 있도록 설계했습니다. 업무공간과 대표실은 전체적으로 차분한 무드를 유지하되, 부드러운 우드 소재와 미색을 베이스로 사용해 과하지 않게 공간의 깊이를 살렸습니다. 이번 <글로벌스테이지그룹> 사무실은 단순한 업무공간을 넘어, 감각이 감각을 자극하는 공간이 되기를 기대했습니다. 일상 속에서 영감을 받을 수 있는 공간, 구성원들에게 또 다른 무대가 되기를 바랍니다.
위 치 경기 파주시
면 적 232㎡ (70PY)
층 고 3260mm
구 성 업무공간, 대표실, 회의실, 카페테리아, 솔로부스,
휴게실, 창고
준 공 2025.03.13
