ILSHIN OFFICE
일신케미칼 당진 사무실
쾌적한 휴식을 위한 사내식당, 그리고 집중을 더한 업무공간
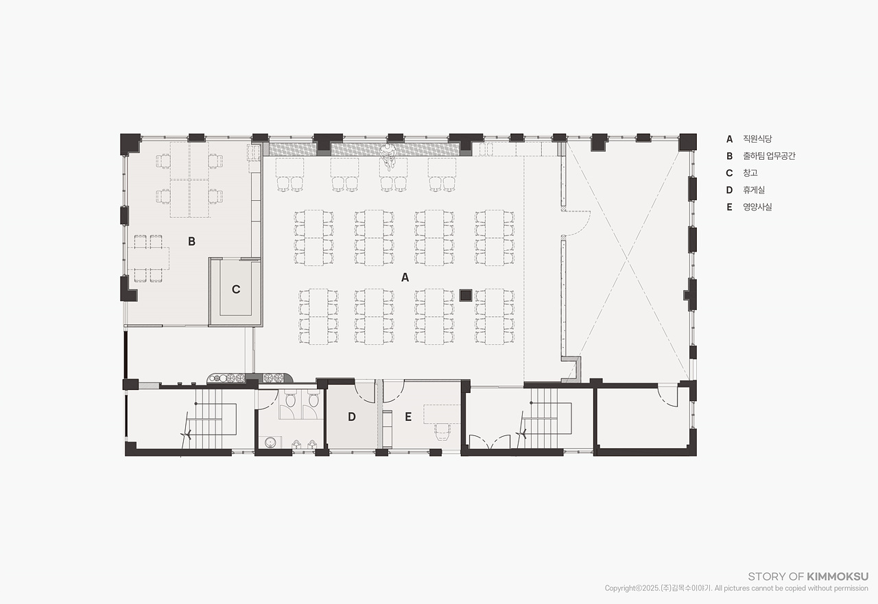
40년간 친환경 신소재를 통해 글로벌 시장을 선도해온 일신케미칼. 이번 리모델링은 일신케미칼 서울 사무실에 이어, 당진 본사의 업무공간과 직원 식당을 새롭게 단장하며 직원들의 업무 환경을 개선하는 데 초점을 맞췄습니다. 총 167평 규모의 2층 건물로 1층에는 최대 80명이 이용할 수 있는 직원 식당과 소규모 업무공간을, 2층에는 임원실, 탕비실, 메인 업무공간이 배치되었습니다. 노후화된 시설의 불편함을 보완하기 위해 기본 구조부터 디자인까지 새롭게 제안하였습니다. 우선 협소했던 기존 식당 공간을 대폭 넓혔습니다. 격자 형태의 오픈 천장과 차분한 조도, 브라운 톤의 깊이감이 더해져 마치 호텔 조식 공간에 방문한듯한 느낌을 연출합니다. 옆으로는 영양사실과 조리원 휴게실을 배치하여 식사를 준비하는 사람들의 편의도 함께 고려했습니다. 업무공간은 아이보리 톤을 베이스로, 짙은 브라운과 우드 포인트를 가미해 보다 집중할 수 있는 환경을 조성했습니다. 이번 작업은 단순히 오래된 시설을 교체하는 데 그치지 않고, 직원들이 일과 삶의 균형을 느낄 수 있도록 설계하여 보다 나은 오피스 라이프를 제안합니다.
위 치 충남 당진시
면 적 552㎡ (167PY)
층 고 3250mm
구 성 업무공간, 회의실, 임원실, 탕비실, 직원식당,
영양사실, 창고
준 공 2024.12.24
