INICS OFFICE
이닉스 사무실
아이디어가 넘치는 <이닉스>의 커뮤니케이션 오피스
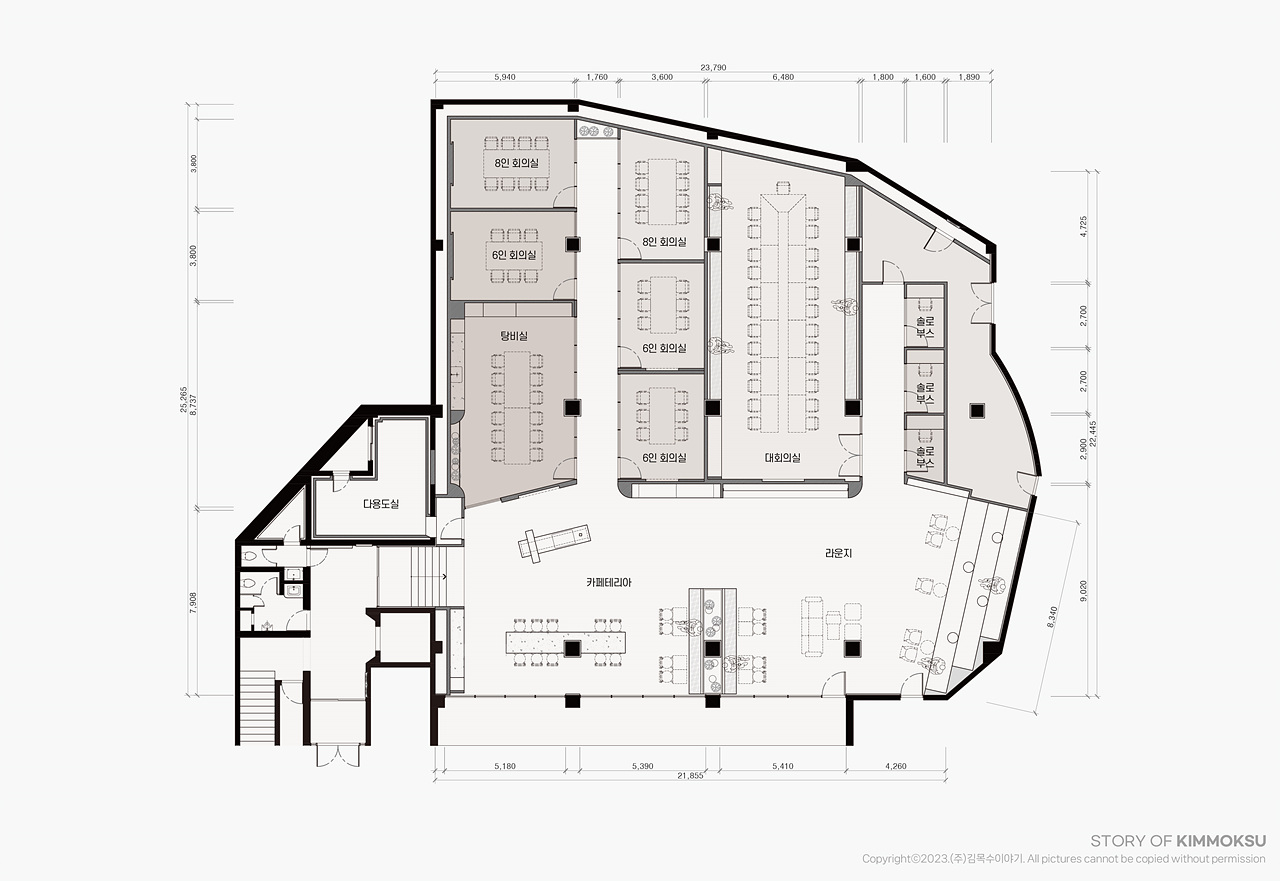
부산 센텀시티 '이닉스' 사옥 1층에 진행된 '커뮤니케이션 라운지' 인테리어를 소개합니다. 197평 규모의 이번 사무실은 직원들이 편안하게 소통하고 협업할 수 있는 환경을 제공합니다. 단순한 사무실이 아니라, 아이디어가 활발히 오가는 '이닉스'만의 커뮤니케이션 중심지로 구상되었습니다. 메인 공간인 라운지와 카페테리아는 탁 트인 구조와 오픈 천장 디자인으로 개방감을 더해, 누구나 편하게 대화할 수 있는 분위기를 연출합니다. 특히, 3단 계단형 의자는 자연스러운 대화를 유도하며, 곳곳에 배치된 식물들은 공간에 생동감을 더해줍니다. 회의실은 대회의실 1개와 6인, 8인 회의실 각 2개로 구성되어 있어 다양한 규모의 회의를 동시에 진행할 수 있도록 설계되었습니다. 각 회의실은 원색 계열의 포인트 컬러로 시각적인 즐거움을 주며, 흡음패널과 카펫 타일 마감으로 소음을 줄여 집중할 수 있는 환경을 조성했습니다. 이는 귀의 피로도를 낮추어 회의의 효율성을 높이는 데 큰 도움이 됩니다.
3개의 솔로부스는 각각 다른 컬러를 적용해 단조로움을 피하며, 개인 작업 공간으로서의 역할을 수행합니다. 직원들은 혼자서 집중할 수 있는 공간을 제공받아, 매일 같은 자리에서 벗어나 다양한 환경에서 작업의 몰입도를 높일 수 있습니다. 이렇게 설계된 '이닉스' 사무실은 기업의 성장에도 긍정적인 영향을 미칠 것으로 기대됩니다.
위 치 부산 센텀시티
면 적 650㎡ (197PY)
층 고 3,150mm
구 성 카페테리아, 라운지, 대회의실, 8인 회의실,
6인 회의실, 탕비실, 솔로부스
준 공 2024.06.21
