DONGGRAMI SOFT OFFICE
동그라미소프트 사무실
아이보리 와 다크우드의 조화 <동그라미소프트> 사무실
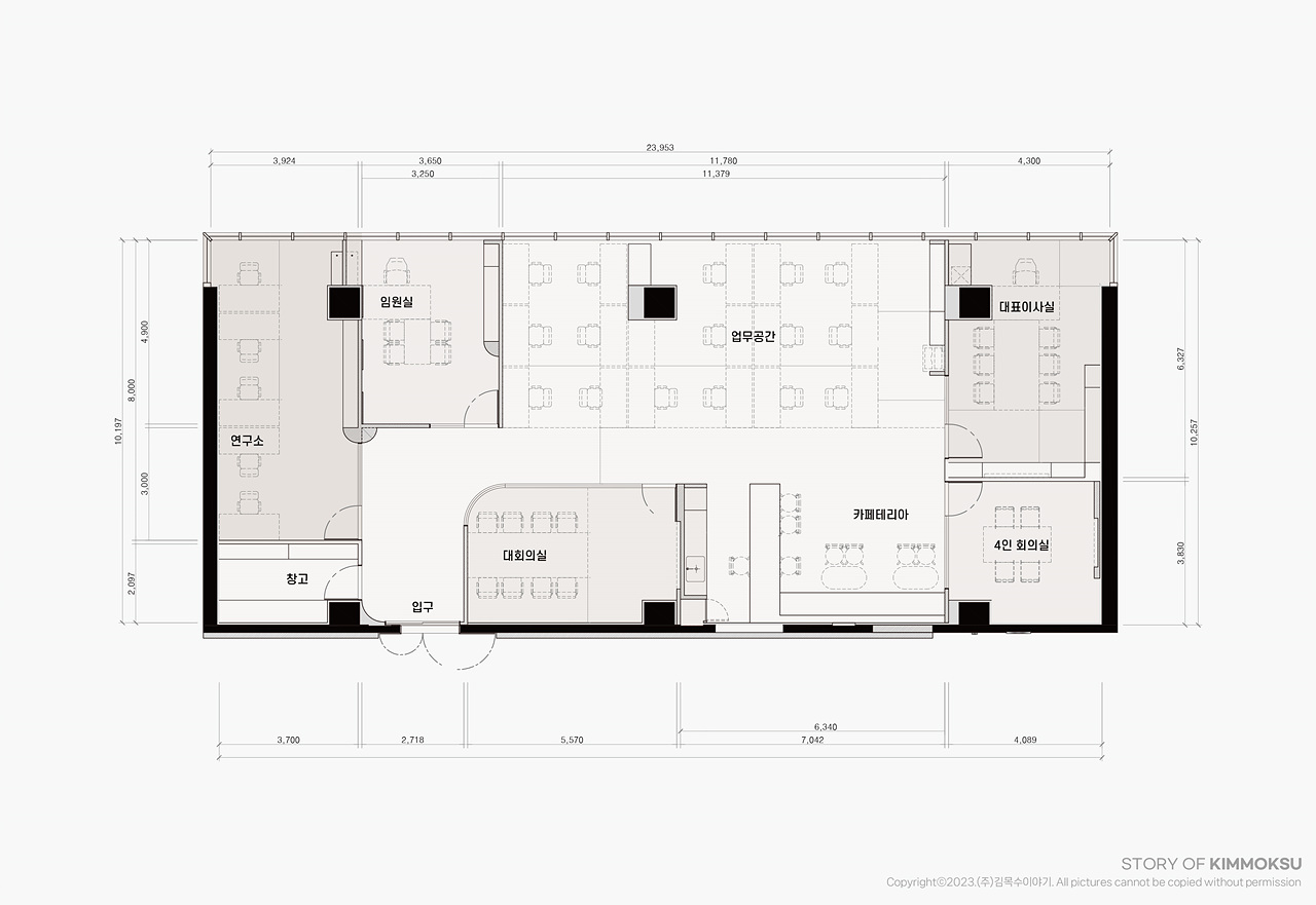
이번 프로젝트는 서울시 금천구에 위치한 73평 규모의 '동그라미소프트' 사무실 인테리어입니다. 전반적인 디자인은 고급스러움과 현대적인 감각을 표현하는 데 중점을 두었으며, 내부는 부드러운 아이보리 컬러를 적용해 부드러운 무드를 연출했습니다. 개방된 업무 공간과 카페테리아, 독립된 회의실, 대표실, 연구실을 효율적인 동선으로 배치하여 사용자의 편리함을 고려한 설계입니다. 입구 파사드는 고급스러움을 강조하기 위해 다크우드 벽면에 조명형 로고 사인과 상하부 간접조명을 접목했습니다. 카페테리아 천장에는 라운드형 바리솔 조명을 설치하고, 그 주위를 간접조명으로 감싸는 디자인을 새롭게 시도했습니다. 새로운 인테리어의 사무실은 직원들의 사기를 높일 뿐만 아니라 기업 브랜드 이미지를 향상시키는데 긍정적인 영향을 줄 수 있습니다.
위 치 서울 가산디지털단지 어반워크
면 적 242㎡ (73PY)
층 고 2700mm
구 성 대회의실, 대표이사실, 연구소, 임원실, 업무공간,
카페테리아
준 공 2024.07.15
