MJ PLEX OFFICE
엠제이플렉스 사무실
공간 효율 200% <MJ PLEX>의 새로운 오피스
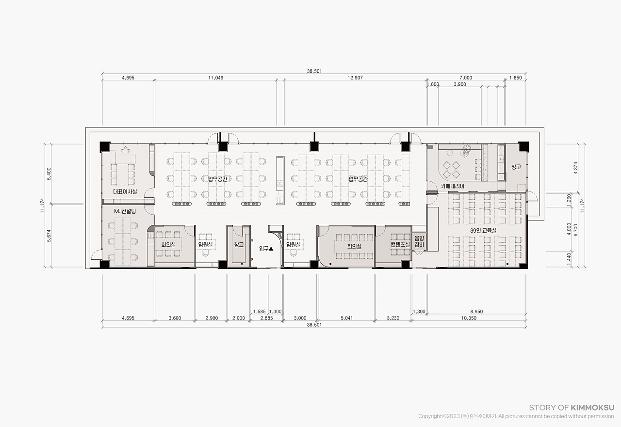
이번 프로젝트는 종합 HR그룹 'MJ PLEX'의 사무실 인테리어로, 구로디지털단지 대륭포스트 8차에서 진행되었습니다. 총 131평 규모의 이 공간은 4개의 호실을 확장하여 약 50명의 직원이 편안하게 근무할 수 있도록 설계되었습니다. 밝고 화사한 화이트&우드 디자인이 주도하는 이 공간은 곡선의 미감을 더해 단아하면서도 생동감 넘치는 분위기를 연출합니다. 효율성을 고려한 'ㄷ'자 형태의 룸 배치는 단조로움을 피하기 위해 입면 디자인에 곡선을 과감히 활용했습니다. 특히, 요청에 따라 설계된 39인 교육실과 콘텐츠실은 외부 소음을 차단하기 위해 방음도어를 설치하고, 내부를 흡음 처리하여 쾌적한 학습 환경을 조성했습니다. 직원들과 외부 손님이 이용할 카페테리아는 프레임리스 폴딩도어로 개방감을 주었고, 헤링본 바닥 스타일로 포근한 휴게 공간을 완성했습니다. 김목수이야기만의 깔끔하고 부드러운 스타일은 'MJ PLEX'의 기업 이미지와 완벽하게 조화를 이루어, 기대 이상의 만족스러운 결과를 이끌어내었습니다.
위 치 서울 구로디지털단지
면 적 433㎡ (131PY)
층 고 2,700mm
구 성 업무공간, 대표이사실, 회의실, 임원실, 컨텐츠실, 카페테리아, 교육실
준 공 2024.05.20
