STM OFFICE

에스티엠 복지동 사무실

일과 쉼이 공존하는  <STM> 복지동 인테리어

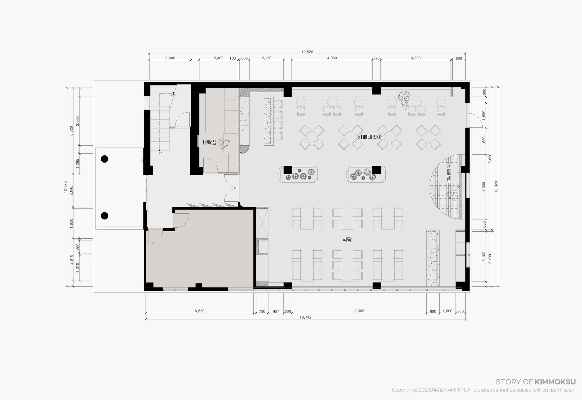
울산 <삼성SDI> 계열의 친환경 에너지 기업인 <STM>의 복지동 인테리어. 이전에 노후되어 있던 2층 건물은 외관과 내부를 완전히 새롭게 리모델링하여, 임직원들을 위한 현대적이고 편안한 복지 공간으로 재탄생하였습니다. 1층은 66평의 공간에 카페테리아, 식당, 세탁실이 자리하고 있어, 직원들이 식사를 하며 소소한 휴식을 취할 수 있는 환경이 조성되었습니다. 2층의 교육실과 회의실에서는 업무에 필요한 모임과 교육이 진행되며, 헬스케어 라운지와 플레이 라운지는 직원들의 건강과 스트레스를 챙길 수 있는 공간을 제공합니다. STM의 복지동은 직원들 간의 소통과 협력을 촉진하며, 직원들이 더 나은 업무 환경에서 더 나은 성과를 낼 수 있도록 도움을 줄 수 있는, 일과 휴식이 균형을 이루는 공간이 될 것입니다.

위    치       울산

면    적       1F-219㎡ (66PY)  2F-250㎡ (75PY)

층    고       2,600-3,700mm

구    성      카페테리아, 식당, 교육실, 회의실, 헬스케어라운지, 

                    플레이라운지, 세탁실

준    공       2023.10.31

STM OFFICE

에스티엠 복지동 사무실

일과 쉼이 공존하는  <STM> 복지동 인테리어

울산 <삼성SDI> 계열의 친환경 에너지 기업인 <STM>의 복지동 인테리어. 이전에 노후되어 있던 2층 건물은 외관과 내부를 완전히 새롭게 리모델링하여, 임직원들을 위한 현대적이고 편안한 복지 공간으로 재탄생하였습니다. 1층은 66평의 공간에 카페테리아, 식당, 세탁실이 자리하고 있어, 직원들이 식사를 하며 소소한 휴식을 취할 수 있는 환경이 조성되었습니다. 2층의 교육실과 회의실에서는 업무에 필요한 모임과 교육이 진행되며, 헬스케어 라운지와 플레이 라운지는 직원들의 건강과 스트레스를 챙길 수 있는 공간을 제공합니다. STM의 복지동은 직원들 간의 소통과 협력을 촉진하며, 직원들이 더 나은 업무 환경에서 더 나은 성과를 낼 수 있도록 도움을 줄 수 있는, 일과 휴식이 균형을 이루는 공간이 될 것입니다.


위    치       울산

면    적       1F-219㎡ (66PY)  2F-250㎡ (75PY)

층    고       2,600-3,700mm

구    성      카페테리아, 식당, 교육실, 회의실, 헬스케어라운지, 플레이라운지, 세탁실

준    공       2023.10.31