GYROSOFT OFFICE
자이로소프트 사무실
신축 지식산업센터 사무실인테리어
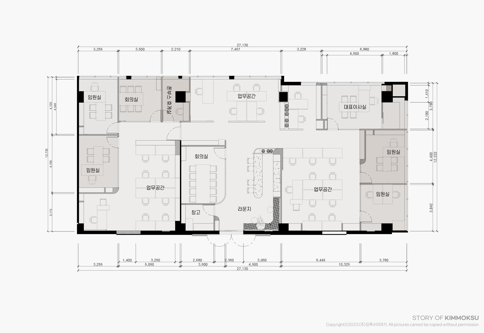
서울 가산디지털단지에 위치한 <자이로소프트> 기업 사무실은 신축 지식산업센터인 '현대테라타워 가산 DK'에 공사가 진행되었습니다. 신축 건물을 텅 빈 공간을 새롭게 채워야하기 때문에 사무실인테리어에 대한 고민이 많을 수 밖에 없는데요. <자이로소프트> 사무실은 입구가 있는 중앙, 양옆으로는 업무공간을 배치해 총 세 개의 구획으로 구분하였습니다. 입구 중앙 구획으로 들어오면 사람들의 동선이 가장 많은 공간이기 때문에 카페테리아와 회의실 등 여러 사람이 공유하는 공간을 배치하여 동선의 효율을 높여주었습니다. 업무공간의 천장은 일자로 뻗은 라인조명을 활용해 시원한 확장감을 연출했으며 부분적으로 곡면 및 우드 질감을 활용하여 따뜻하고 자유로운 분위기를 조성하였습니다.
위 치 서울 가산디지털단지
면 적 335㎡ (101PY)
층 고 2,710mm
구 성 업무공간, 라운지, 임원실, 회의실, 대표이사실, 솔로부스
준 공 2023.10.18
