HOSPI LABORATORY

부산테크노파크 휴먼데이터 연구실

브랜드 색을 활용해 밝고 활동적인 공간

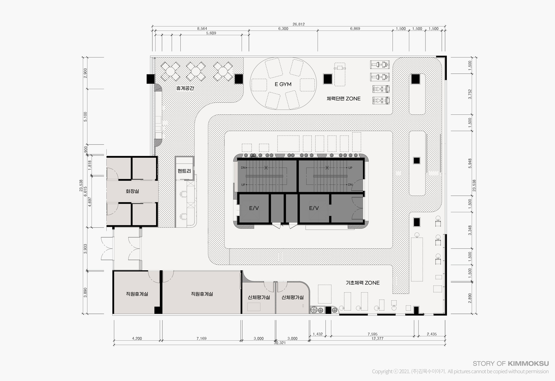
부산 다대포에 위치한 <부산테크노파크 의료산업기술지원센터 휴먼데이터 연구실>  인테리어 프로젝트입니다. 신축 건물이라 기본적인 마감만 되어있던 상태였는데 기업 브랜드를 담아내가 위해 밝고 활동적인 분위기로 제안드렸습니다.  엘리베이터와 계단이 건물 정 중앙에 위치된 독특한 구조였지만, 이 건물만이 가진 고유한 특성이라 생각하여 인테리어에 적극적으로 활용하였으며, 넓은 공간을 벽으로 구분하기보다 바닥 타일의 패턴에 차이를 두어 하나의 긴 동선을 만들었는데, 이 자체가 하나의 재활 프로그램을 위해 설계된 부분입니다. 짙은 녹색과 통통 튀는 오렌지 컬러의 조합이 매력적이었던 <HOSPI>현장이었습니다. 

위    치       부산 기장구

면    적       585㎡ (177PY)

층    고       2,873mm

구    성      인포데스크, 신체평가실, 직원휴게실, 연구실 등 

준    공       2022.05.02

HOSPI LABORATORY

부산테크노파크 휴먼데이터 연구실

브랜드 색을 활용해 밝고 활동적인 공간

부산 다대포에 위치한 <부산테크노파크 의료산업기술지원센터 휴먼데이터 연구실>  인테리어 프로젝트입니다. 신축 건물이라 기본적인 마감만 되어있던 상태였는데 기업 브랜드를 담아내가 위해 밝고 활동적인 분위기로 제안드렸습니다.  엘리베이터와 계단이 건물 정 중앙에 위치된 독특한 구조였지만, 이 건물만이 가진 고유한 특성이라 생각하여 인테리어에 적극적으로 활용하였으며, 넓은 공간을 벽으로 구분하기보다 바닥 타일의 패턴에 차이를 두어 하나의 긴 동선을 만들었는데, 이 자체가 하나의 재활 프로그램을 위해 설계된 부분입니다. 짙은 녹색과 통통 튀는 오렌지 컬러의 조합이 매력적이었던 <HOSPI>현장이었습니다. 


위    치       부산 다대포

면    적       585㎡ (177PY)

층    고       2,873mm

구    성      인포데스크, 신체평가실, 직원휴게실, 연구실 등 

준    공       2022.05.02