DTONIC OFFICE
디토닉 사무실
효율적 동선과 정돈된 레이아웃
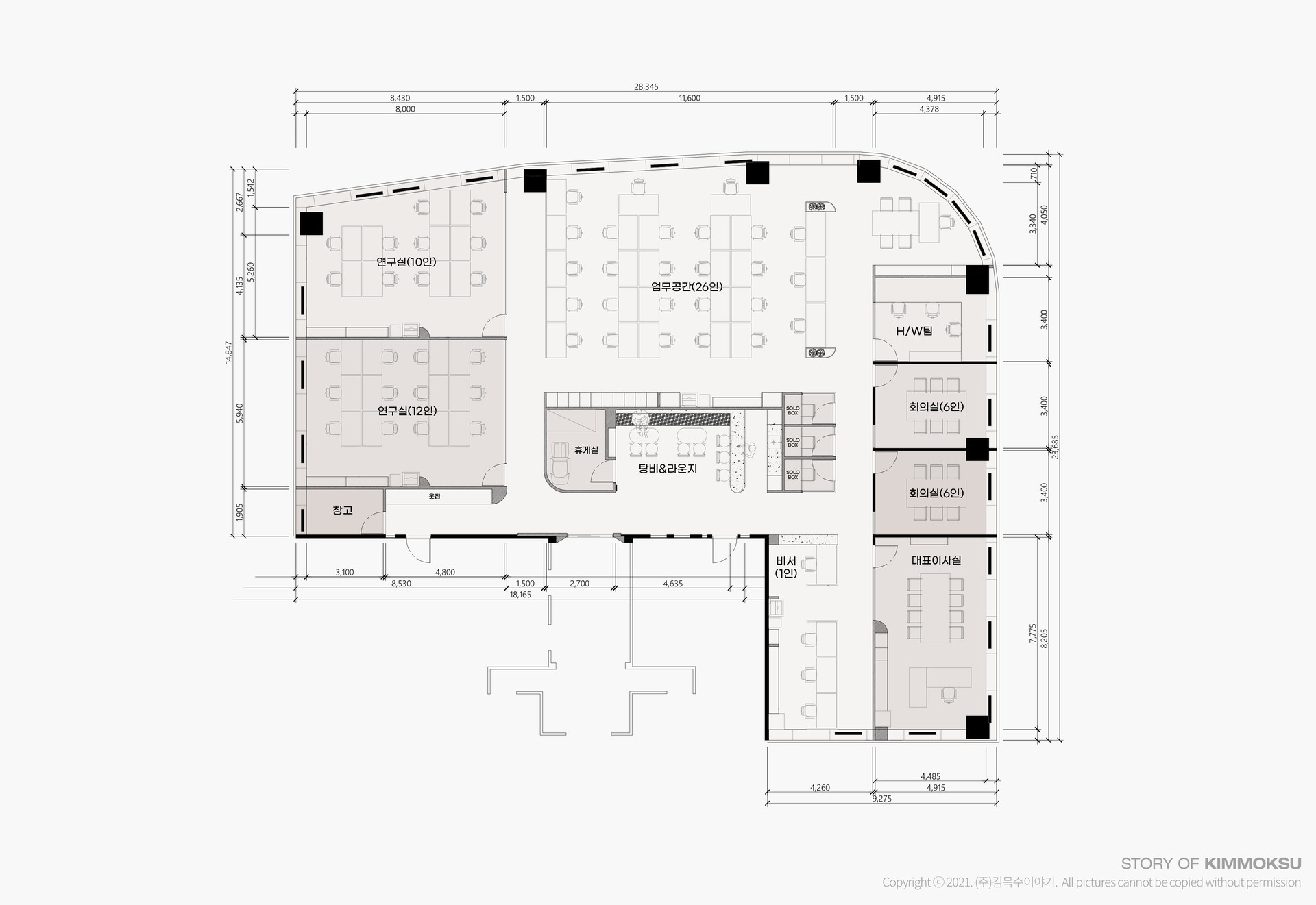
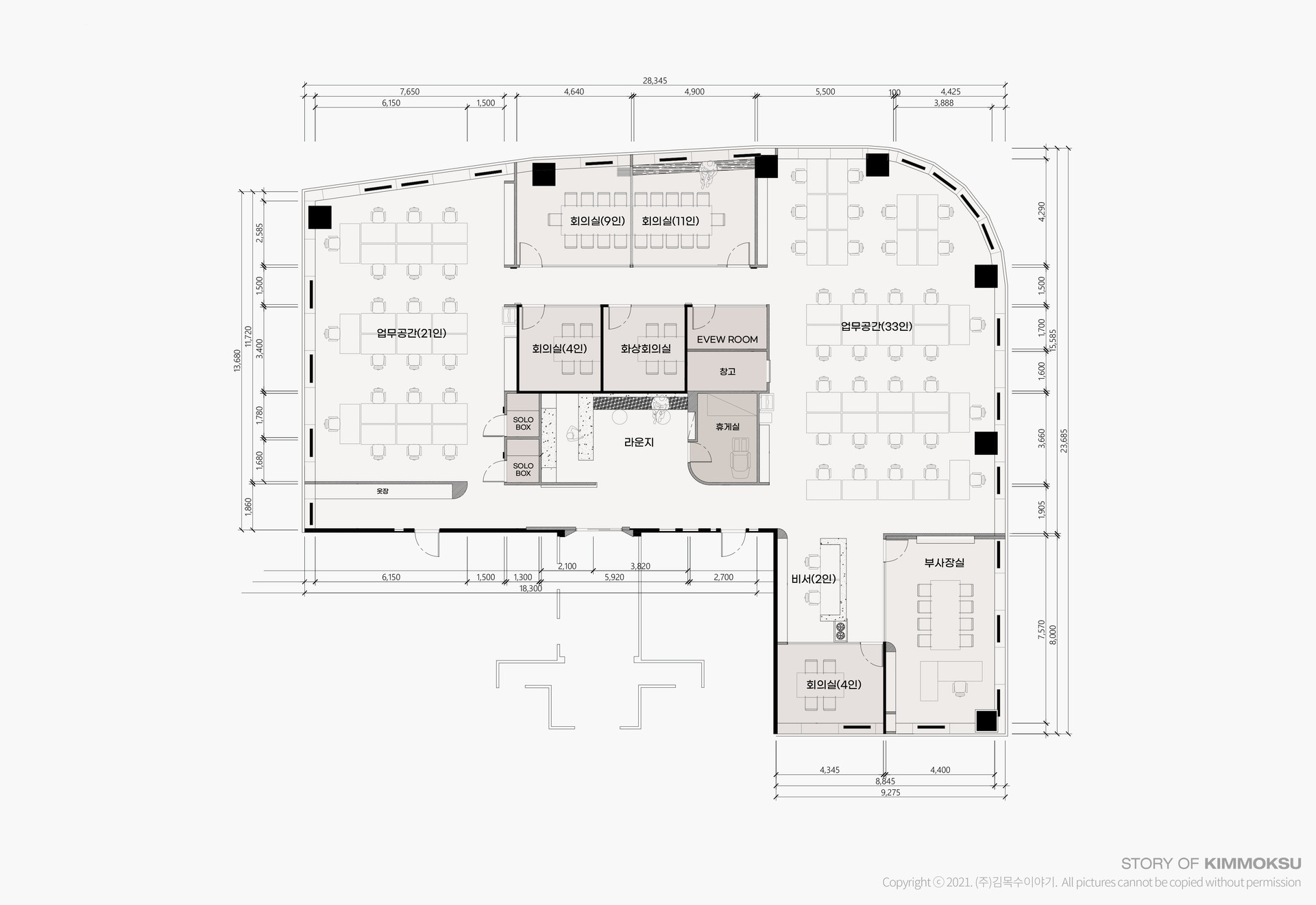
<디토닉>은 시공간 빅데이터 엔진 기술을 보유한 전문 IT기업으로 이번에 경기 성남시 분당으로 사무실을 이전하게 되어 김목수이야기와 인테리어를 진행하게 되었습니다. Dtonic 사무실은 991㎡ (300평)의 공간으로 같은 건물 두 개의 층을 사용합니다. <시공간>,<빅데이터>,<IT> 등의 기업 키워드에 걸맞는 미래지향적 디자인과, 넓은 공간이지만 효율적인 동선과 정돈된 공간 레이아웃을 구성하는데 초점을 맞추었습니다.
위 치 경기 성남
면 적 991㎡ (300PY)
층 고 3,500mm
구 성 업무공간, 회의실, 대표실, 부대표실, 연구실, 휴게실, 솔로부스, 창고
준 공 2023.04.06
