KAP
자동차부품산업진흥원
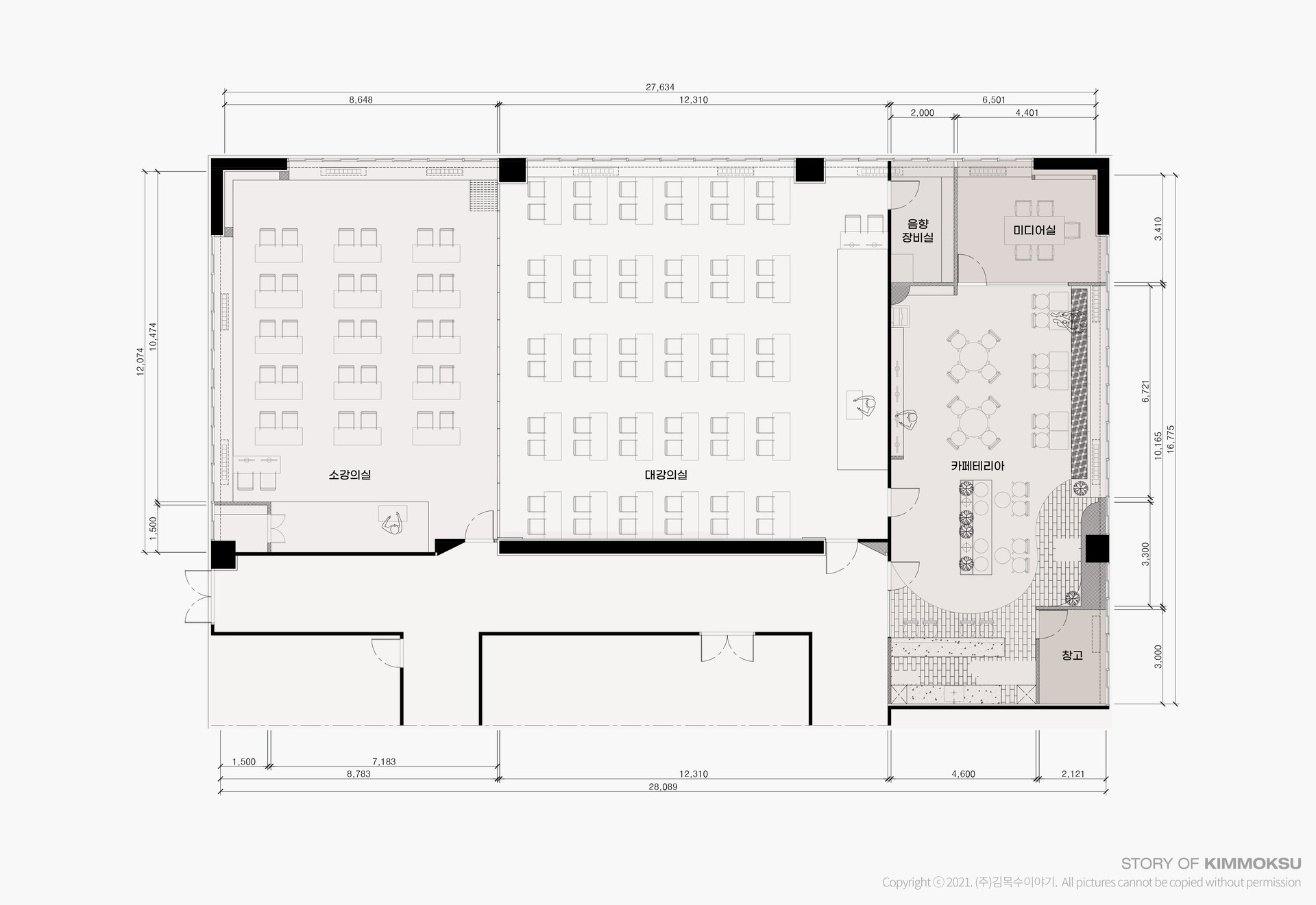
<KAP 자동차부품산업진흥재단> 은 자동차부품 기업의 경쟁력 향상을 위한 교육을 진행하는 비영리 기관입니다. 현재 서울 용산구의 '현대자동차 원효사옥'에 위치해있으며 기존의 노후된 교육장 리모델링 공사를 김목수이야기와 진행하였습니다. 114평의 공간을 두 구역으로 구분해, 교육이 진행되는 '교육장'과 교육생들의 대기 및 휴식을 위한 '카페테리아'를 조성한 프로젝트입니다.
입구 파사드와 복도는 제한된 컬러와 자유롭게 배치된 라인 조명으로 현대적이고 간결한 디자인을 보여주었습니다. 반면 카페테리아는 다채로운 색감과 소재를 활용해 자율성을 강조했으며, 바닥에 연출된 곡면 라인은 자연스러운 동선 유도와 공간 분리를 의도하였습니다. 블랙 톤의 노출천장은 그 사이에서 균형을 잡아주고 공간의 입체감을 더합니다. 교육장 중앙에는 '무빙월'을 시공하여 필요에 따라 공간을 분리하거나 확장할 수 있습니다.
위 치 서울 용산구 현대자동차 원효사옥
면 적 383㎡ (116PY)
층 고 2,498mm
구 성 강의실, 카페테리아, 미디어실, 음향장비실, 창고
준 공 2023.05.31
