HAMIL SELENA

함일셀레나

오래된 공장이 기업의 미래를 담는 사옥이 될 수 있을까요?

'함일셀레나'는 단열·충진재 분야에서 오랜 시간 축적된 기술력을 바탕으로 '월드폼(World Foam)' 브랜드를 성장시켜온 기업입니다.  특수 소재를 연구 · 개발하는 기업의 업무 방식은 일반적인 오피스와 다르게 조직간 협업 구조가 긴밀하게 연결되어 있습니다. 함일셀레나 또한 연구 · 개발 · 관리 부서가 서로 유기적으로 소통해야하는 업무 특성을 갖고 있었기에 실제 직원들의 업무 동선을 반영한 맞춤형 설계가 필요했습니다.  

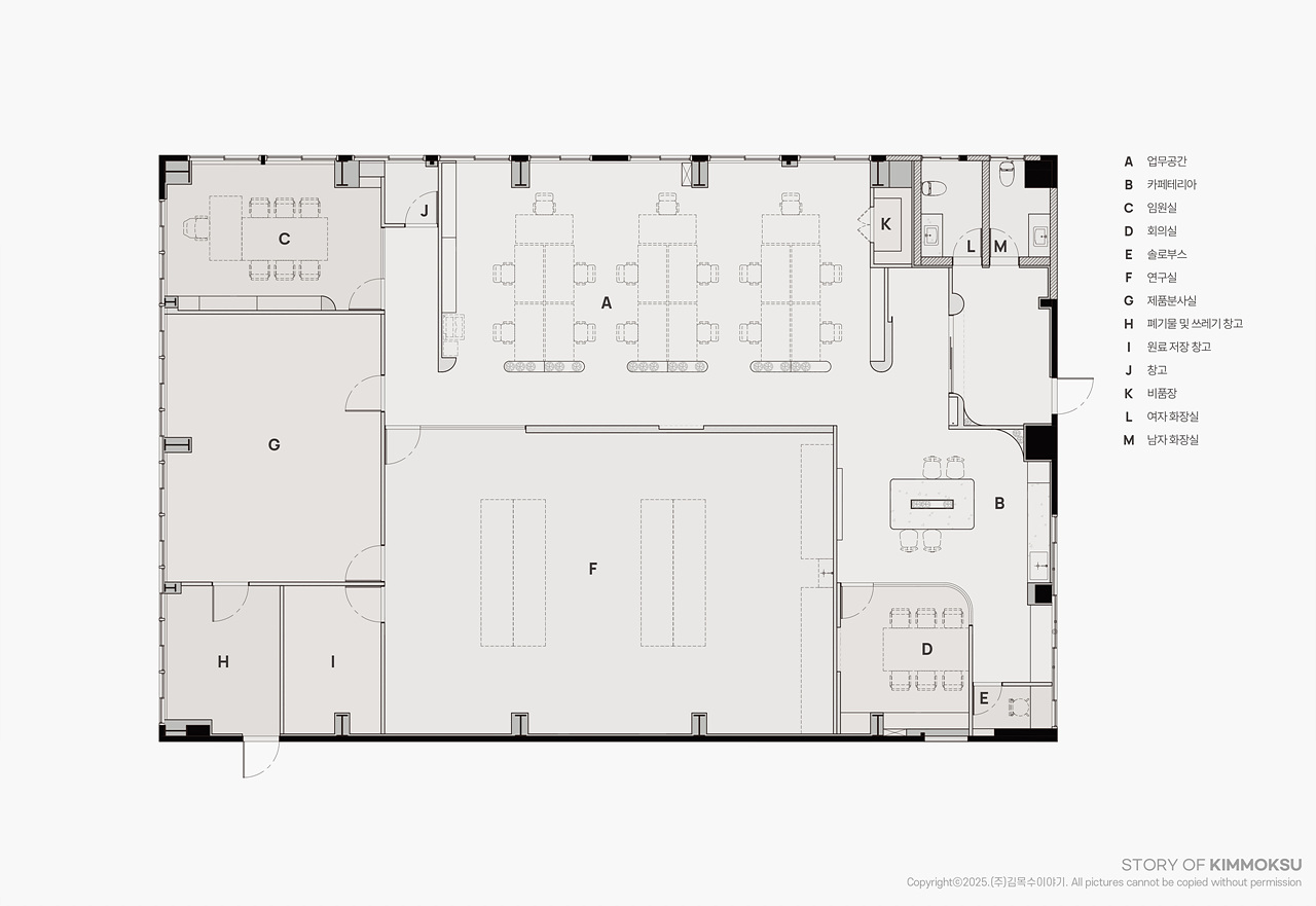
프로젝트가 진행된 공간은 오래된 공장 건물로 김목수이야기는 공장 건물이 가진 확장감을 그대로 가져가면서 구성원들이 불필요한 동선 낭비를 하지 않는 레이아웃을 고민했습니다. 특히 이 건물은 내부와 계단이 완전히 분리된 형태라 2층과 3층을 오갈 때마다 외부 계단실을 통해야 하는 불편함이 있었습니다. 설계팀은 이를 해결하기 위해 ''각 층의 기능을 분리하는 전략'을 선택했습니다. 단절된 동선을 약점으로 보기보다, 층별 기능을 분리하여 집중도가 높아지는 구조로 재해석하였는데요.  2층은 연구 · 개발 중심의 업무 공간으로, 3층은 휴식과 커뮤니케이션을 담은 라운지 공간으로 각 층의 테마를 설정한 후 디테일한 레이아웃을 설계해 나갔습니다.  오래된 공장에서 시작된 사옥 리뉴얼은 함일셀레나가 앞으로 나아갈 방향을 시각적으로, 공간적으로  심도 깊게 담아내는 과정이었습니다. 미래의 기술을 그린 사옥을 통해 기업은 정체성을 더욱 명확하게 드러내고, 새로운 브랜드 경험을 만들어갈 것입니다.

위    치       경남 김해 김해테크노밸리 

면    적       400㎡ (121PY)

층    고       2540mm

구    성      라운지, 카페테리아, 업무공간, 회의실, 임원실, 

                  연구실, 제품분사실, 원료 저장창고, 솔로부스, 

                  비품장, 계단실, 릴렉스룸

준    공      2025.10.22

HAMIL SELENA

함일셀레나

오래된 공장이 기업의 미래를 담는 사옥이 될 수 있을까요?

'함일셀레나'는 단열·충진재 분야에서 오랜 시간 축적된 기술력을 바탕으로 '월드폼(World Foam)' 브랜드를 성장시켜온 기업입니다.  특수 소재를 연구 · 개발하는 기업의 업무 방식은 일반적인 오피스와 다르게 조직간 협업 구조가 긴밀하게 연결되어 있습니다. 함일셀레나 또한 연구 · 개발 · 관리 부서가 서로 유기적으로 소통해야하는 업무 특성을 갖고 있었기에 실제 직원들의 업무 동선을 반영한 맞춤형 설계가 필요했습니다.  

프로젝트가 진행된 공간은 오래된 공장 건물로 김목수이야기는 공장 건물이 가진 확장감을 그대로 가져가면서 구성원들이 불필요한 동선 낭비를 하지 않는 레이아웃을 고민했습니다. 특히 이 건물은 내부와 계단이 완전히 분리된 형태라 2층과 3층을 오갈 때마다 외부 계단실을 통해야 하는 불편함이 있었습니다. 설계팀은 이를 해결하기 위해 ''각 층의 기능을 분리하는 전략'을 선택했습니다. 단절된 동선을 약점으로 보기보다, 층별 기능을 분리하여 집중도가 높아지는 구조로 재해석하였는데요.  2층은 연구 · 개발 중심의 업무 공간으로, 3층은 휴식과 커뮤니케이션을 담은 라운지 공간으로 각 층의 테마를 설정한 후 디테일한 레이아웃을 설계해 나갔습니다.  오래된 공장에서 시작된 사옥 리뉴얼은 함일셀레나가 앞으로 나아갈 방향을 시각적으로, 공간적으로  심도 깊게 담아내는 과정이었습니다. 미래의 기술을 그린 사옥을 통해 기업은 정체성을 더욱 명확하게 드러내고, 새로운 브랜드 경험을 만들어갈 것입니다. 

위    치       경남 김해 김해테크노밸리 

면    적       400㎡ (121PY)

층    고       2540mm

구    성      라운지, 카페테리아, 업무공간, 회의실, 임원실, 연구실, 제품분사실, 원료 저장창고,

                 솔로부스, 비품장, 계단실, 릴렉스룸

준    공      2025.10.22